Contenus. Programme et équipement

Interior y exteriorConceptos.Fluidez y versatilidad Conenido. Programa y equipamiento

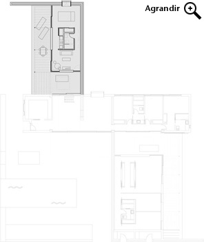
MODULE PETIT ( 2 personnes )

  • Salon-salle à manger avec capacité pour 2 personnes (TV, DVD, Musique)
  • Cuisine (vitrocéramique, microonde…)
  • 1 chambre à coucher (1 lit double)
  • 1 salle de bain complète avec douche
  • Terrace-solarium, chaises longues, douche solaire
  • Porche avec table à manger
  • Barbecue
  • Lit et chaise pour enfant (optatif)
  • Superficie intérieur: 49 m²
  • Superficie extérieur: 59 m²
  • Superficie totale: 108 m²
 
Résumé de la politique de confidentialité

Ce site utilise des cookies afin que nous puissions vous fournir la meilleure expérience utilisateur possible. Les informations sur les cookies sont stockées dans votre navigateur et remplissent des fonctions telles que vous reconnaître lorsque vous revenez sur notre site Web et aider notre équipe à comprendre les sections du site que vous trouvez les plus intéressantes et utiles.