Contenus. Programme et équipement

Interior y exteriorConceptos.Fluidez y versatilidad Conenido. Programa y equipamiento

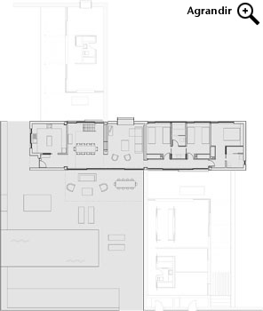
MODULE PRINCIPAL ( 6 personnes )

  • Salon (TV, DVD, Musique)
  • Salle à manger avec capacité pour 12 personnes
  • Cuisine totalement équipée (vitrocéramique, four, lave-vaisselle…)
  • 3 chambres à coucher (1 lit double, 4 lits à une place)
  • 2 salles de bain complètes (1 baignoire, 2 douches)
  • Terrace-solarium au premier étage
  • Piscine de 45m², chaises longues, douches solaires. Priorité à l'utilisation de la piscine
  • Porche couvert avec table à manger et équipement extérieur
  • Barbeque
  • Lit et chaise pour enfant (optatif)
  • Superficie intérieur: 159 m²
  • Superficie extérieur: 321 m²
  • Superficie totale: 480 m²
 
Résumé de la politique de confidentialité

Ce site utilise des cookies afin que nous puissions vous fournir la meilleure expérience utilisateur possible. Les informations sur les cookies sont stockées dans votre navigateur et remplissent des fonctions telles que vous reconnaître lorsque vous revenez sur notre site Web et aider notre équipe à comprendre les sections du site que vous trouvez les plus intéressantes et utiles.