Contenuti, Superfici e equipamento

Interior y exteriorConceptos.Fluidez y versatilidad Conenido. Programa y equipamiento

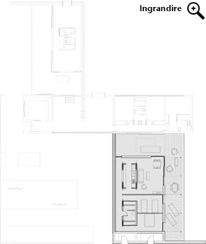
MODULO MEDIANO ( 4 persone )

  • Salone-Comedor con capacidad per 4 persone (TV, DVD, Musica)
  • Cucina totalmente equipata (vitroceramica, forno, lavapiatti…)
  • 2 camere ( 1 letto matrimoniale, 2 letti singoli)
  • 1 bagno completo con doccia
  • Terrazza-solarium, sedie a sdraio, duccia solare
  • Porche con comedor y salone esteriore
  • Barbecue
  • Cuna y trona infantil opzionale
  • Superficie interiore: 91 m²
  • Superficie exteriore: 74 m²
  • Superficie totale: 165 m²
 
Panoramica privacy

This website uses cookies so that we can provide you with the best user experience possible. Cookie information is stored in your browser and performs functions such as recognising you when you return to our website and helping our team to understand which sections of the website you find most interesting and useful.