Contents. Layout and equipment

Interior y exteriorConceptos.Fluidez y versatilidad Conenido. Programa y equipamiento

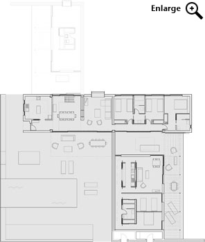
MAIN + MEDIUM MODULES ( 10 people )

  • Living room (TV, DVD, Music)
  • Dining room for 12 people
  • Fully equipped kitchen (electric stoves, oven, microwave, dishwasher, …)
  • Game room (TV, DVD, Music)
  • 5 bedrooms (2 double bed, 6 single beds)
  • 3 bathrooms (1 bath, 3 showers)
  • Swimming pool of 45m² (10 x 4.5 m), deck chairs, solar shower. Gives priority to the particular use of the pool (use priority linked to the main part)
  • 2 Porches with separate dining and living abroad (1 covered)
  • Barbeque
  • Cradle and baby chair (optional)
  • Indoor area: 250 m²
  • Outdoor area: 395 m²
  • Total area: 645 m²
 
Privacy Overview

This website uses cookies so that we can provide you with the best user experience possible. Cookie information is stored in your browser and performs functions such as recognising you when you return to our website and helping our team to understand which sections of the website you find most interesting and useful.